
Im Haus Bethesda in Züssow bei Greifswald entstehen zehn seniorengerechte und barrierearme Wohnungen, die voraussichtlich Anfang März 2026 fertig gestellt werden sollen. Im Zuge einer Kernsanierung des lange leer stehenden Gebäudes werden vier Wohnungen komplett rollstuhlgerecht ausgestattet und über ebenerdige Zugänge und rollstuhlgerechte Bäder verfügen. Im Haus entstehen zudem sechs weitere barrierearme Wohnungen. Über einen Fahrstuhl wird ein stufenloser Zugang zu allen Wohnungen ermöglicht. In das Gebäude soll nach Fertigstellung zudem eine räumlich getrennte Tagesgruppe für Menschen mit Behinderungen einziehen.
Das Haus Bethesda befindet sich in der Gustav-Jahn-Str. 11 in Züssow auf einem großen parkähnlichen Gelände. Lange stand das historisch wertvolle Gebäude leer, seit 2024 führt der Pommersche Diakonieverein eine Kernsanierung durch, um den wertvollen Bau zu erhalten und zu modernisieren. Ein Lebensmittelgeschäft und Einrichtungen des täglichen Bedarfs sind fußläufig erreichbar. Züssow liegt in der näheren Umgebung von Greifswald und Usedom und verfügt über einen ICE-Bahnhof.
Sie erreichen uns:
Immobilienverwaltung
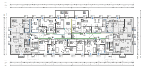
| 1. Obergeschoss | Wohnfläche |
|---|---|
| Wohnung 1 | 51,38 m² |
| Wohnung 2 (rollstuhlgerecht) | 73,63 m² |
| Wohnung 3 | 47,11 m² |
| Wohnung 4 | 46,08 m² |
| Wohnung 5 (rollstuhlgerecht) | 64,24 m² |
| Wohnung 6 | 44,70 m² |
| Dachgeschoss | Wohnfläche |
|---|---|
| Wohnung 7 (rollstuhlgerecht) | 63,87 m² |
| Wohnung 8 | 55,85 m² |
| Wohnung 9 | 56,06 m² |
| Wohnung 10 (rollstuhlgerecht) | 65,18 m² |
Die Solaranlage ist fertig gestellt. Das Erdgeschoss ist nun bezugsfertig. Die feierliche Wiedereröffnung ist für den 17. April 2026 geplant.
Das Erdgeschoss ist nun fertig gestellt. Hier zieht in den kommenden Wochen eine Tagesgruppe des Geschäftsbereichs arbeiten des Pommerschen Diakonievereins ein. Die Mietwohnungen im 1. OG sollen voraussichtlich im März 2026 fertig gestellt sein.