
Im Philosophenweg in Lubmin sind von 2020 bis 2022 drei Wohngebäude mit insgesamt 31 Mietwohnungen entstanden. In unmittelbarer Nähe zum Lubminer Strand bieten die 2-, 3- und 4-Raum-Wohnungen modernen und behaglichen Wohnkomfort mit gehobener Ausstattung. Die baugleichen Wohngebäude im Philosophenweg Nr. 9 und Nr. 9a mit jeweils sechs Wohnungen sind im Juni 2021 fertig gestellt worden. Im September 2022 konnte dann ein weiteres Mehrfamilienhaus mit der Haus-Nr. 18 und weiteren 19 Wohnungen bezogen werden. Bei den Neubauten handelt es sich jeweils nicht um ein Angebot im Rahmen des Betreuten Wohnen, sondern um Mietwohnungen.
Sie erreichen uns:
Immobilienverwaltung
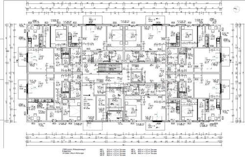
Vom Frühjahr 2021 bis zum August 2022 wurde im Philosophenweg Nr. 8 ein Mehrfamilienhaus mit 19 Mietwohnungen (2- und 4-Raum-Wohnungen) errichtet. Das Gebäude befindet sich in unmittelbarer Nähe zum Lubminer Strand und den anderen beiden Neubauten im Philosophenweg Nr. 9 und 9a. Alle Wohnungen verfügen über Terrasse oder Balkon. Das Gebäude hat einen Aufzug.
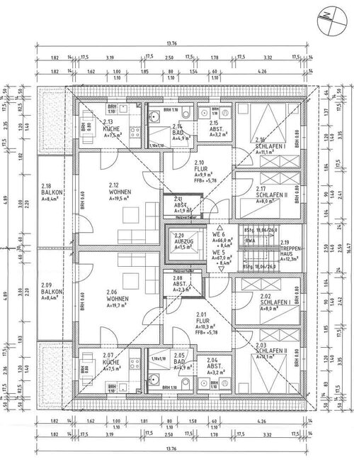
Anfang Juli 2021 konnten die ersten Mieterinnen und Mieter in die zwei modernen Wohngebäude direkt am Lubminer Strand einziehen. Beide Wohngebäude sind baugleich und haben jeweils sechs Mietwohnungen. Die 2- und 3-Zimmer-Wohnungen mit 71,6 bis 81,9qm bieten modernen und behaglichen Komfort. Alle verfügen jeweils über Terrasse und Balkon mit Blick zum Strand und Wasser. Im Erdgeschoss befinden sich in beiden Gebäuden jeweils zwei barrierefreie und behindertengerechte 2-Raum-Wohnungen, im ersten und zweiten Obergeschoss jeweils vier 3-Raum-Wohnungen. Beide Gebäude verfügen über einen Fahrstuhl und Autostellplätze direkt vor der Tür.