
Diese Website informiert über den Bau des Pflegezentrums.
Für Informationen zum Angebot und Kontakt klicken Sie bitte auf den Link.
Am 06. März 2026 laden wir Sie von 10:00 bis 17:00 Uhr herzlich zu einem Tag der offenen Tür ein.
Kommen Sie vorbei und informieren Sie sich unverbindlich über die Angebote, Aufnahme und Möglichkeiten der Finanzierung. Unsere Mitarbeitenden sind gerne für Sie da!
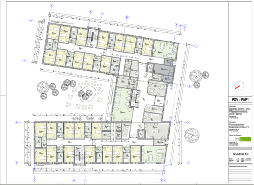
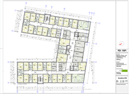
Der Pommersche Diakonieverein e.V. baut zwischen der „grünen Meile“ Pappelallee und dem Puschkinring in Greifswald ein modernes Seniorenzentrum. Direkt an den Stadtpark anschließend werden hier, ab März 2026, 103 Pflegebedürftige betreut.
Neben komfortabel und modern eingerichteten Einzelzimmern, stehen auch großzügige Appartements zur Verfügung, um gemeinsam als Paar einziehen zu können.
Sie erreichen uns:
Regionalleitung: Katja Kühn
Verwaltung: Rita Boberg
Diese Website nutzt Cookies und vergleichbare Funktionen zur Verarbeitung von Endgeräteinformationen und personenbezogenen Daten. Die Verarbeitung dient der Einbindung von Inhalten, externen Diensten und Elementen Dritter, der statistischen Analyse, sowie der Einbindung sozialer Medien. Je nach Funktion werden dabei Daten an Dritte weitergegeben innerhalb der EU. Ihre Einwilligung ist stets freiwillig, für die Nutzung unserer Website nicht erforderlich.





