
Im Rahmen des Bauprojekts Annastift wird das historische Gebäude in Jarmen umfangreich modernisiert. Zukünftig vereint es verschiedene Angebote für unterschiedliche Altersgruppen unter einem Dach. Das Konzept verfolgt einen integrativen Ansatz und bietet sowohl medizinische Versorgung als auch betreutes Wohnen und jugendliche Wohnformen.
Sie erreichen uns:
Immobilienverwaltung
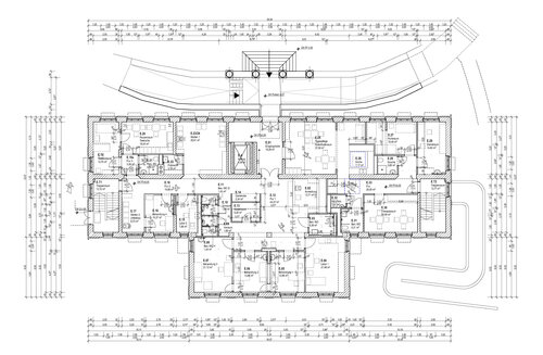
Ins Erdgeschoss wird eine Tagespflege mit 9 Plätzen einziehen. Hier werden Seniorinnen und Senioren tagsüber betreut und gefördert. Verantwortlich für die Tagespflege ist Frau Claudia Hübner, erreichbar unter Tel. 038353 620.
Ebenfalls im Erdgeschoss angesiedelt wird eine Hausarztpraxis, die von den Allgemeinmedizinerinnen Nora Späte und Dr. Sarah Kellner aus Jarmen betrieben wird. Die Praxis bietet eine wohnortnahe medizinische Versorgung für die Bewohner und die umliegende Gemeinde.
Das erste Obergeschoss ist einer Senioren-Wohngemeinschaft mit 10 Mietplätzen vorbehalten. Jeder Wohnraum verfügt über ein eigenes Badezimmer, ergänzt durch einen großzügigen gemeinschaftlichen Wohnbereich. Ein Fahrstuhl gewährleistet die barrierefreie Erreichbarkeit aller Etagen.
Für den Einzug ist kein Pflegegrad erforderlich. Die pflegerische Versorgung erfolgt nach individuellem Bedarf. Unser ambulanter Pflegedienst steht hierfür gerne zur Verfügung. Zudem steht den Bewohnerinnen und Bewohnern vor Ort eine Präsenzkraft als Ansprechpartnerin zur Verfügung. Auch hier ist Claudia Hübner (Tel. 038353 620) die zentrale Kontaktperson.
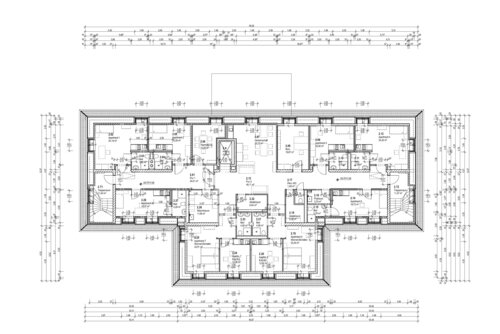
Im zweiten Obergeschoss entstehen 8 Apartments für Jugendliche im Rahmen des Betreuten Wohnens (ein Leistungsangebot der NBS gGmbH). Diese bieten jungen Menschen ein sicheres und unterstützendes Wohnumfeld mit eigenständigen Wohneinheiten. Ansprechpartnerin für diesen Bereich ist Anita Thurow, erreichbar unter Tel. 03834 83570.