
In Lubmin am Greifswalder Bodden wird das ehemalige Pflegeheim „Haus Meeresblick“ zu einem Wohngebäude umgebaut und zusätzlich durch einen Neubau ergänzt. In direkter Lage zur Lubminer Strandpromenade entstehen barrierearme und barrierefreie Wohneinheiten im Bestand und im Neubau. Aufzüge, Balkone oder Terrassen sowie eine Beheizung mit Wärmepumpen prägen das Wohnkonzept. Der geplante Baubeginn liegt im dritten Quartal 2026.
Geplant sind Umbau, Sanierung und Umnutzung des ehemaligen Pflegeheimes „Haus Meeresblick“ zu einem Wohngebäude. Das Bestandsgebäude befindet sich in unmittelbarer Lage an der Ostseeküste und bietet einen direkten Blick auf den Lubminer Strand sowie den Greifswalder Bodden. Ergänzend zum Bestandsbau wird auf dem Grundstück ein weiteres Wohnhaus errichtet, das das bestehende Gebäudeensemble erweitert.
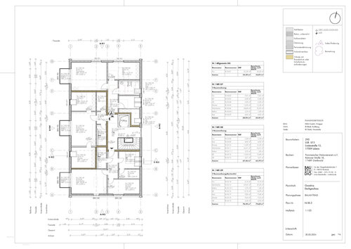
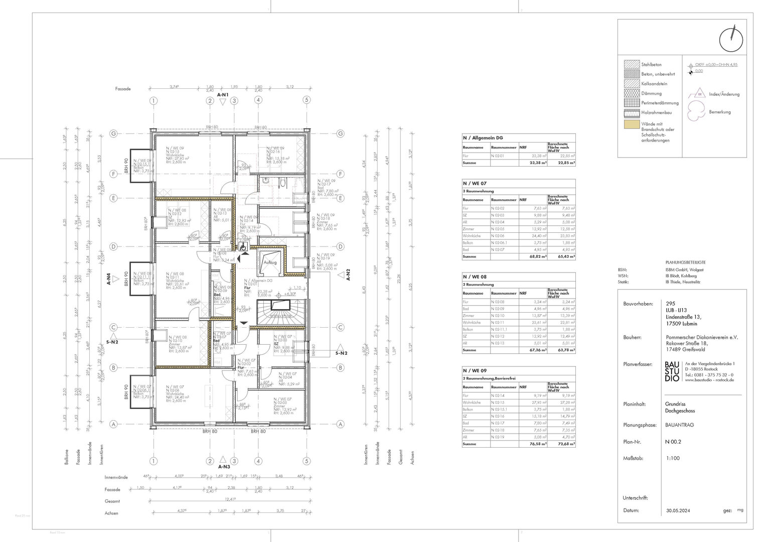
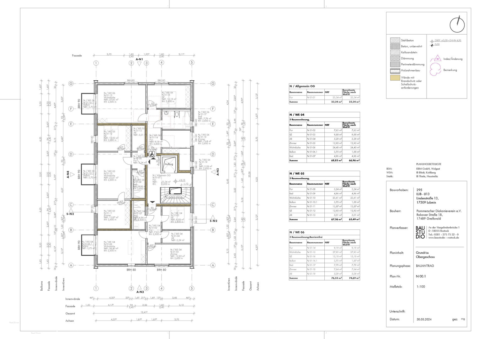
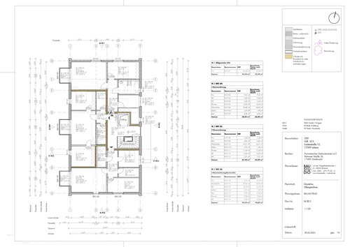
Im sanierten Bestandsgebäude entstehen insgesamt acht Wohneinheiten, von denen sechs barrierearm und zwei barrierefrei ausgeführt sind.
Der Neubau wird in Holzrahmenbauweise realisiert und umfasst neun zusätzliche Wohneinheiten. Auch hier ist die barrierearme und barrierefreie Ausgestaltung ein zentrales Planungsmerkmal: Sechs Wohneinheiten sind barrierearm, drei barrierefrei vorgesehen.
Beide Gebäude sind mit Aufzügen ausgestattet und ermöglichen einen komfortablen Zugang zu allen Wohnebenen. Die Beheizung der Wohneinheiten erfolgt über Wärmepumpen. Jede Wohnung verfügt über einen Balkon oder eine Terrasse. Für den ruhenden Verkehr stehen insgesamt 17 Stellplätze für Kraftfahrzeuge sowie 24 Fahrradabstellplätze auf dem Grundstück zur Verfügung.

Das Bauprojekt liegt direkt an der Lubminer Strandpromenade. Abgänge zum Sandstrand sind in wenigen Metern vorhanden (bitte beachen Sie, dass es sich bei den Strandabgängen um Treppen handelt.)